Santa Cruz Cultural Center - Hazlo con Sentido

Santa Cruz Cultural CentER

Cultural Adaptive Reuse

Location | Santa Cruz, Bolivia
Date | 2009

Team |
Diego Collazos, Gonzalo Gottret, Eduardo Collazos

Client |
Fundación Cultural del Banco Central de Bolivia

Photos |
Diego Collazos CCP

Awards |
1st Place Architecture Competition

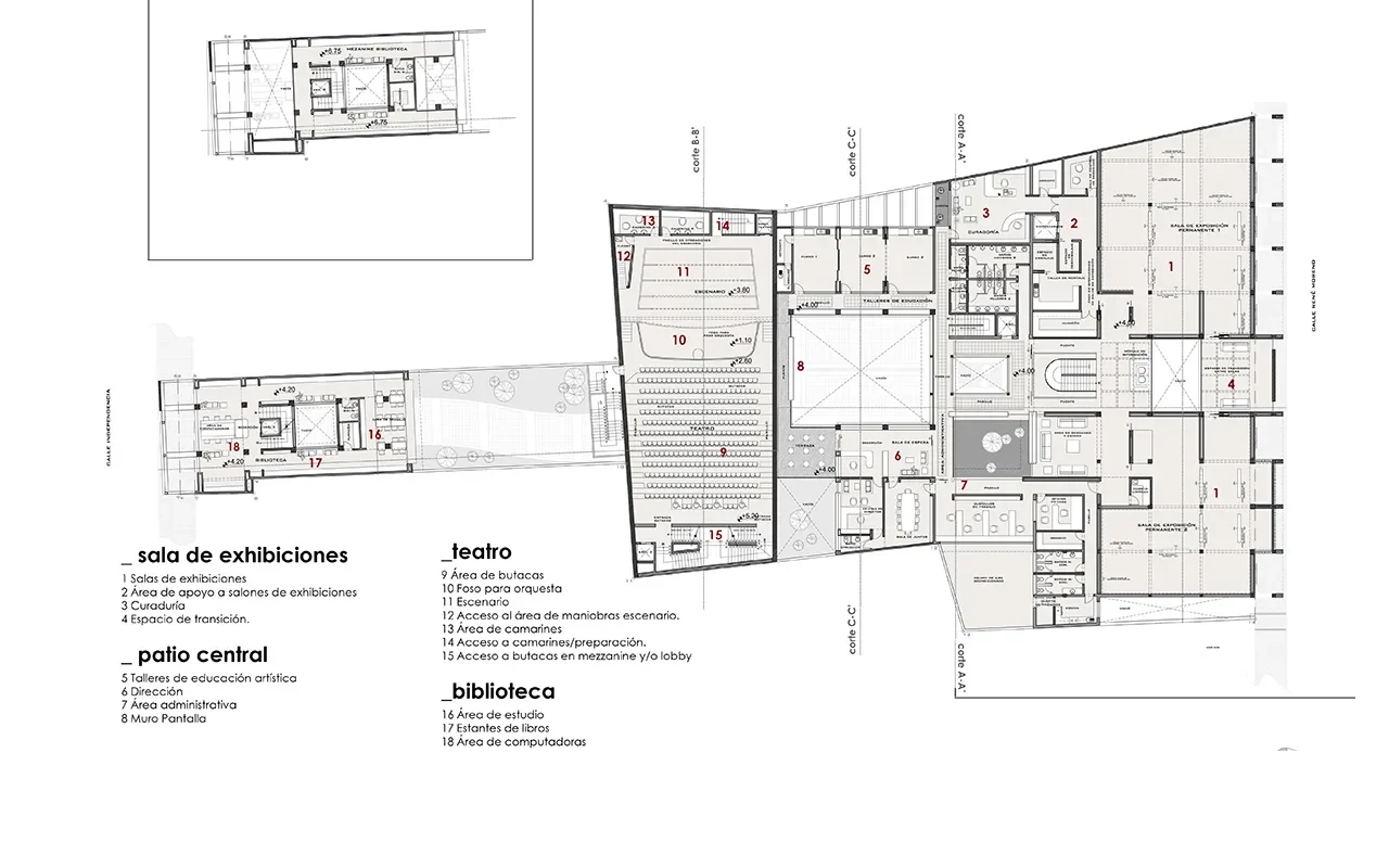
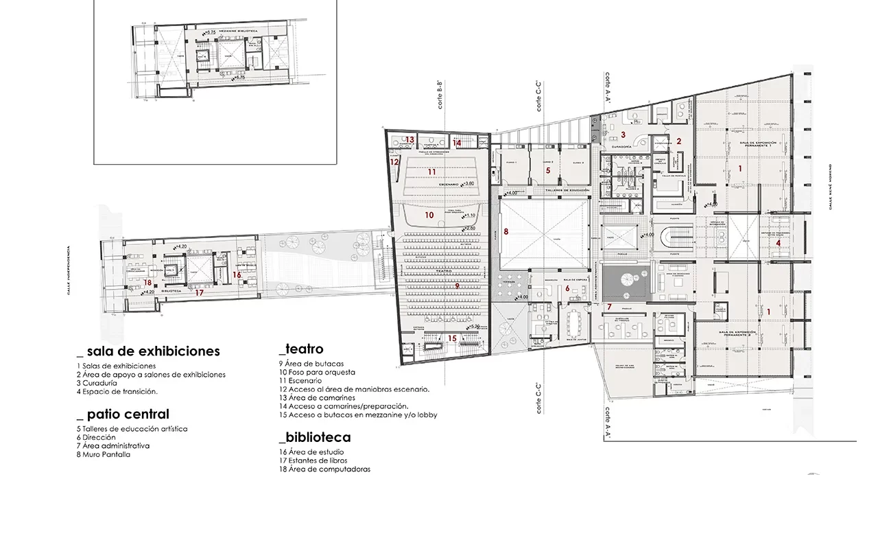
The project contemplates the reuse of a vacant building that previously operated as a bank headquarters. The proposal seeks to keep the existing architectural typology, adding new buildings as well as making emphasis in the integration with the public space by generating pedestrian corridors that invite passers-by to enter the Cultural Centre and enjoy the artistic venues, such as the exhibition halls, library and theater.

Contact

Av. Kantutani 900 | La Paz | Bolivia

+591 71565879

dcollazos@hazloconsentido.com