Los Angeles Clinic - Hazlo con Sentido

LOS ANGELES CLINIC

HEALTHCARE

Location | Cochabamba, Bolivia

Date | 2009

Client |
Clinica Los Angeles

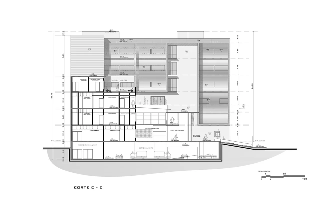
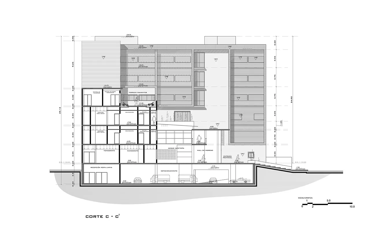
Third level clinic provides state of the art healing facilities, as well as recreational and relaxing areas to be used by patients, companions and medical staff. A terrace is generated between two towers for exclusive users’ access. The terrace also connects the northern tower designated for Hospitalization with the southern tower designated for patient activities.

Contact

Av. Kantutani 900 | La Paz | Bolivia

+591 71565879

dcollazos@hazloconsentido.com